Logo
ALPINE
ALPINE
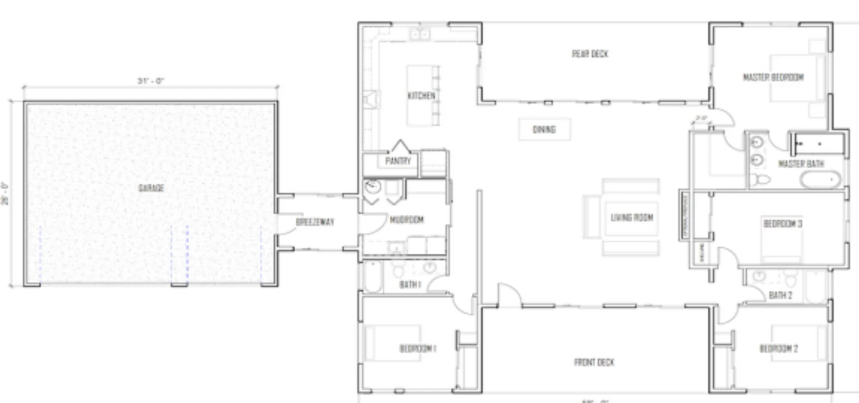
2,372 Sq Ft | 3 or 4 Bedrooms | 3 Baths | 2+ Garage

PRICING:

Panelized Shell Kit – $199,380
Added cost for 40–100 PSF snow load – $18,938
Added cost for up to 250 PSF snow load – $37,200

(Shipping not included)

All pricing is subject to change and correction.

Currently available in UT, ID, CO, WY, MT, AZ, NV, OR & WA.

 


 

WINDOW AND EXTERIOR DOOR PACKAGES

Cascade WinPro Vinyl (4 week lead time)

Clay Exterior / Interior – $17,615

Black Exterior / White Interior – $27,100

Durable, low-maintenance vinyl with energy-efficient dual-pane glass — a cost-effective option with clean, modern lines.

Andersen 100 Series Upgrade – $49,235 (7 week lead time)
Made from Fibrex® composite materials, these windows are 2x stronger and have a 12x thicker finish than painted vinyl, offering superior durability and performance.

*Shipping, handling and installation included

 


 

PERMIT-READY DESIGN & ENGINEERING PACKAGE$16,965
(Not part of the panel contract)

What’s Included:

Architectural Floor Plans:
Professionally drafted plans created by experienced builders and designers who understand efficient construction and practical design flow.

Structural Engineering:
Fully engineered plans stamped and designed for your site’s specific conditions—snow loads, seismic activity, frost depth, and local code requirements.

Energy Compliance Package (Res-Check):
Comprehensive documentation for energy efficiency compliance, ready for building department submission.

Site Plan:
A location-specific plan for your property, tailored to your layout and building footprint. (Geotechnical and soils engineering not included.

Mechanical, Electrical, and Plumbing (MEP) engineering not included. Your general contractor may provide these services, or Zip Kit Homes can prepare the MEP package for an additional fee.

 

 


 

 

SHIPPING FROM CEDAR CITY, UTAH $10-$25 PER MILE

Shipping costs vary based on mileage and the number of trailers required to deliver your home.

Smaller homes typically require fewer trailers and have lower freight costs; larger homes require more trailers and higher transport fees.

 

 


 

ITEMS INCLUDED IN THE PANELIZED SHELL KIT

1. Pre-framed exterior wall panels

2. Pre-framed interior wall panels

3. Pre-framed stairs and structural components

4. ZIP sheathing and tape seal

5. Pre-cut structural beams and posts

6. Engineered roof panels or trusses

7. Lumber for truss and roof completion (sheathing, blocking, sub-fascia, etc.)

8. Synthetic underlayment for roofing dry-in

9. Labor to set panels and complete framing and roofing dry-in

 


 

PAYMENT TERMS
Payment 1: Design & Engineering
Payment 2: 45% – To purchase materials, secure a slot on our production schedule, and begin factory construction
Payment 3: 45% – When the panelized kit is completed and ready to ship
Final Payment: 10% – When the panelized kit is assembled and our scope of work is completed

 


 

ABOUT THE HOMES
Traditional onsite construction is outdated — slow, wasteful, and inefficient. Our modern prefab method is faster, cleaner, and smarter.

Advantages of our panelized construction:

1. Built Faster – Up to 3x faster than standard site-built homes.

2. Less Stress – Streamlined from design to dry-in with clear documentation and process support.

3. Precision-Built – Fabricated in a controlled environment using precision equipment.

4. Sustainable – 80% less waste and a cleaner, more organized jobsite.

 


 

BUILDING PROCESS

Step 1: Design & Engineering
Once you select your floor plan and submit the design & engineering payment, our team gets to work verifying local building requirements. This includes snow load, frost depth, wind, and seismic conditions. We then prepare a complete, site-specific set of stamped plans and construction documents ready for permit submission.

Step 2: Site Preparation
After your permit is issued, your local contractor will handle excavation, foundation, and utility connections. We provide all necessary drawings, foundation layouts, and details to ensure the site is ready for a smooth set.

Step 3: Shell Kit Delivery & Assembly
When the site is prepped, we ship your panelized shell kit and assemble it on location. Within about a week, your home is fully framed, roofed, and weather-tight. If you’ve chosen a window and door package, installation is included—so your home is sealed and protected, ready for finishes.

Step 4: Local Finishing Work
Once the shell is complete, your local subcontractors take over to finish the home. They will do the siding, roofing, electrical, plumbing, HVAC, insulation, drywall, and all interior finishes. These trades are performed by licensed professionals in your state to meet code and maintain warranty compliance.

Final Step: Move In & Enjoy
Your finished home meets the same building codes and lender requirements as any traditional build, but it’s completed with greater precision, faster timelines, and far less stress with Zip Kit Homes. It's a modern prefab done right: efficient, beautiful, and built to last.

ALPINE
ALPINE
ALPINE Floor Plan
ALPINE Floor Plan

Contact Us